空分装置低温液体泵的操作与研究
- 发表时间:2024-06-19
- 来源:本站
- 人气:8428
低温液体泵(简称低温泵)是在石油、空分和化工装置中用来输送低温液体(如液氧、液氮、液氩、液态烃和液化天然气等)的特殊泵。它的用途是将低温液体从压力低的场所输送到压力高的场所。随着空分技术的发展,低温液体得到了广泛的应用及发展。其在空分设备中的只要作用为:用于液体循环;或是从贮槽抽取液体并将其压入汽化器,汽化后送给用户。
按照工作原理的不同,低温泵主要分为往复式和离心式两类
低温液体泵简介
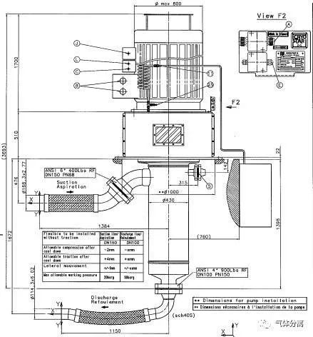
泵直接与一个电机连接
用三氯乙烯脱过油脂,可以用于液氧,这些泵可以不再进行处理,直接用于液氧。这些泵交货时就带有润滑脂/润滑油,适合于液氧的工作条件。有些泵与齿轮箱一起交货的,按照用户的要求,带有矿物油,标签上写着“不适用于氧气”。
密封氮气在生理学上是一种无毒的惰性气体,当将空气中的氧气置换为氮气后,通过降低氧气的局部压力,引起窒息,它对人体组织起有害作用。
由氮气引起的首次窒息症兆:在头部、前额附近有绷紧或压紧的感觉;在舌头、手指尖和脚趾头有麻痹的感激;讲话困难、微弱,导致不能发声;不被察觉的很快降低了身体运动和协调运动的能力,导致全身僵化;降低对外部世界的感应、感觉器官特性衰减,特别是触觉。
泵的存放
泵如果不立即使用,必须将泵储存在干燥的环境中,防止受到油,灰尘,子和水的侵害。
泵如果不与罐相连接,那么,管路必须有个朝着泵的不变的向上的倾斜度。
为了阻止外部物体渗透到泵中。必须在管道上装一个过滤器,对于氧气系统,外来颗粒会引起火灾和爆炸。
吸入过滤器的过滤等级必须为560微米,其有效面积至少应该为吸入管路面积的1.5倍。
为了减少蒸发(热入口)所有支管应尽可能靠近安装,为了限制蒸发带来的损失,你应该考虑隔热。
(2)吸入管线的设计
吸入管路的安装:管路必须尽量的直和短,隔热良好,对泵没有作用力,泵的吸入接管(接头和阀门)的直径相同,接头和阀门被限制到最少,朝着泵有不变的向下倾斜度(泵与罐相连接),朝着泵有不变的向上倾斜度(泵与罐不相连接)。需要的接头和阀门,切断阀,安全阀,柔性管路部分,用于液氧的过滤器(泵仅用在液氧条件下时);在泵的排放管路上的‘止回阀’。
建议在每个支路上安装关断阀、压力表、管径逐渐变化、所有的吸入管路都要避免突然弯曲、非液氧的条件下也采用过滤器、隔热。
有异径管时采用偏心异径,泵进口采用顶平(防气袋),出口采用底平(防止液袋)。
吸入管路可能的安装错误
注意:压力降,热泄漏= 降低泵的净吸入压头
润滑剂 应该使用下面的润滑剂(电动机轴承用的润滑脂)
注意事项:由于存在爆炸的危险,不要在氧气的工作条件下,使用常规的市场上的矿物油为主的润滑剂,电动机的轴承除外。
预启动控制
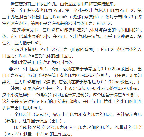
打开密封气体供应阀。通过压力计的调节螺栓的作用,调节压力Pin,使得Pin高于泵的入口压力。调整仪上游动压力Pu(密封氮气供应):Pu必须至少比参考压力高2-3巴,Pref是参考压力,一般Pu必须低于10巴。过高的压力会损坏标准仪上游的过滤器。
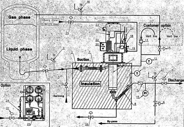
在操作和特别是在冷却期期间,暖箱必须用气态氮进行吹扫,阻止电机轴承和泵末端结冻。天茂气体提示您氮气吹扫压力必须在0.1-0.15巴之间,在泵冷却前,它必须吹扫至少30mn。氮气必须是干净而且干燥的,露点:-80℃或更低。
温度:首次冷却:T>0℃,在泵运行期间周围环境温度。在冷却期期间和在操作时,暖箱必须用气态氮进行吹扫,阻止电机轴承和泵末端结冻。打开密封气体入口,密封气体必须是干燥氮气,在泵冷却前,它必须吹扫至少30mn。
密封的紧固和气体消耗依赖调整器的控制。如果入口压力变化,检查调整器。
注意:在冷却末端,手动检查轴旋转的方向。如果可以够到吊环,利用泵轴上的吊环手动旋转泵,从而控制旋转。
对于没有强制通风、带有电机和暖箱的泵进行装配:拆卸电机罩。与泵旋转方向一致手动旋转风扇。确保轴旋转自如。对于有强制通风、带有电机和暖箱的泵进行装配:运行泵1秒或者2秒,当泵停机时,检查泵是否运转自如。轴的旋转不会很快慢了下来。在操作的过程中,小心谨慎,防止启动事故发生。
有时,储罐中重力头(液柱高于泵吸入嘴)不足以补偿摩擦损失和入口管线上的热量渗入。在这样一种情况下,在储罐中建立气体压力,在储罐中增加这个必要的压力是获得泵NPSH和安装的一种方法。然而它仅仅只能由试验决定。储罐在最低可能的压力下运行。
故障查找
后备泵及汽化系统
(1) 贮槽
贮槽型式一般有两种,一种为真空贮槽(容积≤150m³,200m³时内筒直径4.0米,外筒总高度25米,再大则无法运输),真空贮槽也称为压力贮槽,一般2∽16barG,压力再高则内筒壁厚较厚,而且升压较慢,容积再大(200∽400m³)则需要用子母罐(也为真空贮槽)。
断)。
同时可以双贮槽并联,当气量有一定变负荷时也应有双空温式汽化器并联,对于水浴式蒸汽量需要可调且有保证。
(3)后备泵
后备泵一般有离心泵和活塞泵两种。离心泵一般进液体量3000Nm³以上,排压10-100bar,离心泵一般转速采用变频器控制,需要加温气和密封气(要求为干燥空气),密封有机械密封和迷宫密封。迷宫密封价格较贵。同时立式离心泵有泵前回气管路,接入贮槽(充车泵(卧式泵无泵前回气,直接由进液管排气)无,但是有密封气和加温气)。
由于氩气产品经济价值大,所以一般氩贮槽一般采用气氩回收进冷箱的管路设置。而氧氮气体则直径放空。
(5)产品外销
产品外销有销售气体和液体两种。销售气体一般压力150barG(柱塞充瓶泵排压165barG,一般300Nm³/h),同时配置空温式汽化器(165barG,300Nm³/h)和多组二十只充瓶台。
销售液体则直接接入槽车,方式一般有两种:一种是直接由真空贮槽(8barG),增压充槽;另外一种是由平底贮槽配置离心泵充车。
结束语
在市场竞争激烈的今天,科技创新研发、优智脑体分配、职业分化管理是解决企业一切发展问题的总钥匙、总开关、总按钮。自古华山一条路,未有捷径可平云,纵观借鉴世界超级大国美国的近现代崛起历史,可以得出,大力发展科技创新与研究,大胆学习世界领先企业的思想与管理,积极推进工业国际化和全球化,乃是伟大祖国成为除欧美之外的全球三大超级大国的必由且唯一之路。
上一篇:腾讯视频播放器 v8.10.50.28239 安卓版
下一篇:腾讯视频版本大全
- 2025-08-26天然气容器装置收费受多种因素影响,储罐规格如何决定价格?
- 2025-08-26氧气储存容器制造企业哪家质量可靠?认识核心角度与挑选要点
- 2025-08-25液氨储罐检查计划有多重要?这些方面你得知道
- 2025-08-25液氩储罐示意图助您了解存放装置运作,其原理及应用领域解析
- 2025-08-05储罐材质对性能、安全及寿命影响几何?碳钢与不锈钢详析
- 2025-08-05LNG 储罐结构示意图,助你快速掌握关键部件及连接方式
- 2025-08-04液氨储罐区安全技术要点:选址布局、罐体设计与应急处理详解
- 2025-08-04天然气储罐安全保障:应急措施如何有效执行及应对泄漏火灾?
- 2025-07-28液氩储罐分类大揭秘:结构形式与压力等级各有何特点?
- 2025-07-28液氧储罐操作规程很关键!关乎安全与运行,充装前要这样做
- 2025-07-22液氩储罐与厂房间距多重要?关乎安全及法规要求
- 2025-07-22电线质量与使用安全:耐火阻燃检测标准及外观检查要点
- 2025-07-21二氧化碳气罐价格受多种因素影响,不同规格用途价格有别?
- 2025-07-21液氧储罐生产商核心地位凸显,多方面影响行业运作
- 2025-07-08二氧化碳储罐安全标准至关重要,使用时这些规则要牢记
- 2025-07-08化工生产常压液氨储罐:关键设施的安全隐患与安装要点?
-
液化天然气(LNG)储罐
冲压设备必须具备以下安全设施:⒈冲压设备上应··· -
液化石油气(LPG)储罐
冲压设备必须具备以下安全设施:⒈冲压设备上应··· -
液化石油气储罐撬装
冲压设备必须具备以下安全设施:⒈冲压设备上应··· -
液氯储罐
液氯储罐亦称液氯储槽,是盛装液氯介质的专用压···