山东中杰特种装备股份有限公司专业生产压力容器,欢迎您的访问!

专注压力容器研发制造

全力打造国内压力容器行业领军品牌

服务咨询热线:

15053033312
当前位置:首页 >> 新闻资讯 >> 公司新闻

史上最全的储罐分类!赶紧收藏!

  • 发表时间:2024-05-21
  • 来源:本站
  • 人气:3397

泵阀之家合作伙伴,点击下方字体进入

★江南泵阀-专业衬氟泵-值得信赖★

厂里的化工原料放在哪?化工产品又放在哪?他们跟我们一样,也需要一个安居之所。储罐便是他们的“大房子”。现实生活中的房子样式可谓种类众多,其实,储罐的样式也不少!跟小编一起来看看吧!

液氨储罐需要备用罐吗_液氨贮罐材料_液氨储罐用什么材料

液氨储罐用什么材料_液氨贮罐材料_液氨储罐需要备用罐吗

液氨储罐需要备用罐吗_液氨储罐用什么材料_液氨贮罐材料

液氨贮罐材料_液氨储罐用什么材料_液氨储罐需要备用罐吗

不同位置

液氨贮罐材料_液氨储罐需要备用罐吗_液氨储罐用什么材料

地上储罐

液氨储罐用什么材料_液氨储罐需要备用罐吗_液氨贮罐材料

半地下储罐

液氨贮罐材料_液氨储罐需要备用罐吗_液氨储罐用什么材料

地下储罐

液氨储罐需要备用罐吗_液氨储罐用什么材料_液氨贮罐材料

不同容量

液氨储罐用什么材料_液氨贮罐材料_液氨储罐需要备用罐吗

大型储罐:容量大于100 m3

小型储罐:容量小于100 m3

不同形式

液氨储罐用什么材料_液氨储罐需要备用罐吗_液氨贮罐材料

立式储罐

大型立式储罐可以存储较大量的液体介质,如原料(乙醇、正丁醇、辛醇等)、成品(丙烯酸、丙烯酸乙酯等)。

小型立式储罐主要作为中间产品罐。

锥顶储罐

液氨储罐需要备用罐吗_液氨储罐用什么材料_液氨贮罐材料

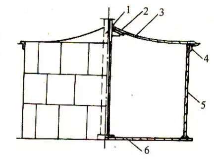
自支撑锥顶罐其锥顶荷载靠锥顶板周边支撑在罐壁上,储罐容量一般小于1000m³。

液氨贮罐材料_液氨储罐用什么材料_液氨储罐需要备用罐吗

1-锥顶板,2-中间支柱,3-梁,4-承压圈,5-罐壁,6-罐底

支撑式锥顶其锥顶荷载主要靠梁或者檀条及柱来承担,其储罐容量可大于1000m³。

锥顶罐制造简单,耗钢量大,顶部气体空间小。而且自支撑锥顶不适用于有不均匀沉陷的地基或者地震载荷较大的地区。除去容量很小的罐外,锥顶罐在国内很少应用,在国外特别是地震很少发生的地区使用较多。

拱顶储罐

液氨储罐需要备用罐吗_液氨贮罐材料_液氨储罐用什么材料

拱顶储罐的罐顶类似于球冠形的封头。这类罐可以承受较高的饱和蒸汽压,蒸发损耗较少,耗钢量和罐顶气体空间都优于锥顶储罐。

网壳顶储罐

液氨储罐需要备用罐吗_液氨贮罐材料_液氨储罐用什么材料

球面网壳顶的主体是一个与罐壁相连并置于罐顶钢板内单层球面网壳,类似于近代大型体育馆屋顶的网架结构。

伞顶储罐

自支撑伞形顶是自支撑拱顶的变种,其任何水平截面都具有规则的多边形。

罐顶荷载靠伞顶支撑于罐壁上,其强度接近于拱形顶,但安装较容易,因为伞形板仅在一个方向弯曲。这类罐在美国、日本应用较多,在我国很少采用。

液氨储罐需要备用罐吗_液氨贮罐材料_液氨储罐用什么材料

外浮顶储罐

罐的浮动顶(简称浮顶)漂浮在储液面上。浮顶与罐壁之间有一个环形空间,环形空间内装有密封元件,浮顶与密封元件一起构成了储液面上的覆盖层,随着储液上下浮动,使得罐内的储液与大气完全隔开,减少介质储存过程中的蒸发损耗,保证安全,并减少大气污染。

单盘式浮顶:由若干个独立舱室组成环形浮船,其环形内侧为单盘顶板。单盘顶板底部设有多道环形钢圈加固。其优点是造价低、好维修。

双盘式浮顶:由上盘板、下盘板和船舱边缘板所组成,由径向隔板和环向隔板隔成若干独立的环形舱。其优点是浮力大、排水效果好。

内浮顶储罐

内浮顶就是在固定罐的内部再加上一个浮动顶盖。与外浮顶储罐相比,内浮顶储罐可大量减少储液的蒸发损耗,降低内浮盘上雨雪荷载,省去浮盘上的中央排水管、转向扶梯等附件,并可在各种气候条件下保证储液的质量,因而有“全天候储罐”之称,特别适用于储存高级汽油和喷气燃料以及有毒易污染的液体化学品。

卧式储罐

液氨储罐用什么材料_液氨储罐需要备用罐吗_液氨贮罐材料

大型卧式储罐用于储存压力不高的气体、液化气、液体,如液化石油气。

液氨储罐用什么材料_液氨储罐需要备用罐吗_液氨贮罐材料

小型卧式储罐主要用于计量、冷凝罐用。

球形储罐

液氨储罐需要备用罐吗_液氨贮罐材料_液氨储罐用什么材料

适用于存储容量较大且有一定压力的液体,如液氨、液化石油气、乙烯等。

液氨贮罐材料_液氨储罐需要备用罐吗_液氨储罐用什么材料

桔瓣式球罐

液氨储罐需要备用罐吗_液氨贮罐材料_液氨储罐用什么材料

桔瓣式球罐的球壳划分就像桔瓣,是一种最通用的形式。优点是焊缝布置简单,组装容易,球壳板制造简单,缺点是材料利用率低。

足球瓣式球罐

液氨贮罐材料_液氨储罐需要备用罐吗_液氨储罐用什么材料

足球瓣式球罐的球壳划分和足球壳一样,所有球壳板片大小相同,所以又叫均分法。优点是每块球壳板尺寸相同,下料成型规格化,材料利用率高,互换性好,组装焊缝较短,焊接及检验工作量小,缺点是焊缝布置复杂,施工组装困难,对球壳板得制造精度要求高,由于受钢板规格及自身结构的影响,一般只适用于制造容积小于120m³的球罐。

混合式储罐

液氨贮罐材料_液氨储罐需要备用罐吗_液氨储罐用什么材料

混合式罐体的组成是赤道带和温带采用桔瓣式,而极板采用足球瓣式结构。由于这种结构取桔瓣式和足球瓣式两种结构的优点,材料利用率较高,焊缝长度缩短,球壳板数量减少,且特别适合大型球罐。

双曲线储罐

液氨储罐用什么材料_液氨储罐需要备用罐吗_液氨贮罐材料

结构复杂,施工困难,造价高。罐壁受力很小,可以大大节约钢材,但自出现后由于结构复杂,施工困难,造价高,国内没建造过,国外也很少采用,实际上己被淘汰。

悬链式储罐

液氨储罐需要备用罐吗_液氨储罐用什么材料_液氨贮罐材料

在国内又称为无力矩储罐,它是根据悬链线理论,用薄钢板制造的。其顶板纵断面呈悬链曲线状。由于这种形状的罐顶板只受拉力作用而不产生弯矩,所以称为无力矩顶油罐,这种结构国内在20世纪50--60年代曾建造过.但由于顶板过薄易积水,锈蚀遭损坏,目前已被淘汰。

不同温度

低温储罐(-90 ℃— -20 ℃)

常温储罐(

高温储罐(90 ℃—250 ℃)

商家推荐

液氨储罐需要备用罐吗_液氨贮罐材料_液氨储罐用什么材料

液氨储罐用什么材料_液氨储罐需要备用罐吗_液氨贮罐材料

液氨贮罐材料_液氨储罐用什么材料_液氨储罐需要备用罐吗

推荐产品
联系我们
山东中杰特种装备股份有限公司
在线客服:357577119
服务热线:15053033312
售后服务:15053033312
电子邮件:357577119@qq.com
公司地址:山东省菏泽市开发区济南路2218号